Stadtwappen

Befüllen von privaten Pool- und Schwimmbädern und die richtige Entsorgung des Beckenwassers

11.07.2024: Wichtige Informationen!
Rathaus mit 50 Jahre Logo_seitliche Ansicht_sonnig

„Digitale und offene Sprechstunde" mit dem Bürgermeister

11.07.2024: im Rathaus am Montag, 29. Juli, von 17 - 18 Uhr und via "OpenTalk" am Montag, 29. Juli von 16 - 17 Uhr!
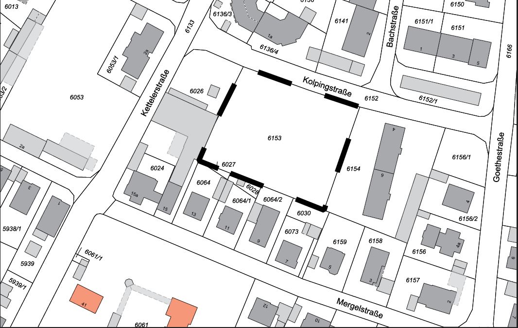
Bebauungsplan.JPG

Aufstellung der 7. Änderung des Bebauungsplanes „Westlich der Bahnlinie“

10.07.2024: Der Stadtrat der Stadt Erlenbach a.Main hat in seiner Sitzung vom ....
Westlich der Bahnlinie.jpg

6. Änderung des Bebauungsplans "Siedlung"

10.07.2024: Aufstellung der 6. Änderung des Bebauungsplanes „Siedlung“; Förmliche Öffentlichkeitsbeteiligung (öffentliche Auslegung) gemäß § 13a Abs. 2 Nr. 1 i.V.m.§ 13 Abs. 2 und 3 Satz 1 und 3 Abs. 2 Baugesetzbuch (BauGB)
Rathaus groß mit 50 Jahre Logo

Rathaus am Weinfestmontag nur bis 15 Uhr geöffnet!

09.07.2024: Am Weinfest Montag, 15. Juli, wird das Rathaus ab 15 Uhr geschlossen. Die VHS schließt bereits ab 12 Uhr. Vielen Dank für Ihr Verständnis!
Ferienspiele

Das Programm ist online!

09.07.2024: Anmeldungen sind ab sofort möglich!
Weinfest

Citybus-Einsatz zum 64. Weinfest

05.07.2024: Der Fahrtpreis für die einfache Fahrt beträgt von allen Abfahrtsstellen 2 € pro Person!
Rathaus mit 50 Jahre Logo_seitliche Ansicht_sonnig

Rathaus heute geschlossen!

05.07.2024: Aus organisatorischen Gründen! Vielen Dank für Ihr Verständnis!
Jugendkulturpreis.JPG (1)

Preisträger Jugendkulturpreis 2024

02.07.2024: Bürgermeister, Stadtrat und Stadtverwaltung gratulieren sehr herzlich zu dieser Auszeichnung.
LogoStadtradeln.JPG

Stadtradeln 2024

02.07.2024: Stadtradeln geht in die nächste Runde
Reisepass.JPG

Pass- und Ausweiserinnerung

21.06.2024: Die Ausstellung von Ausweisen und Reisepässen dauert derzeit mindestens 8 Wochen!
Mülltonne

Änderung bei der Restmüllabfuhr in Mechenhard und Streit

20.06.2024: Der Abfuhrplan ab Juli 2024 liegt in der KW 26 in der Stadtinfo bei!
Marathonschwimmen.jpg

Marathonschwimmen der Wasserwacht Erlenbach erlebt Neustart

19.06.2024: Am 15.06.2024 fand im Bergschwimmbad das 21. Marathonschwimmen der Wasserwacht Erlenbach statt.
Gruppenbild.jpg

Stadtbibliothek erhält Förderung Lesezeichen 2024

19.06.2024: Besuchen Sie die neugestalteten Räume!

Restmüllabfuhr erfolgt heute

18.06.2024: Landratsamt Miltenberg teilt mit, dass die Müllabfuhr heute erfolgt!
Mehr Meldungen laden