Stadt Erlenbach a.Main Stadt Erlenbach a.Main
english français

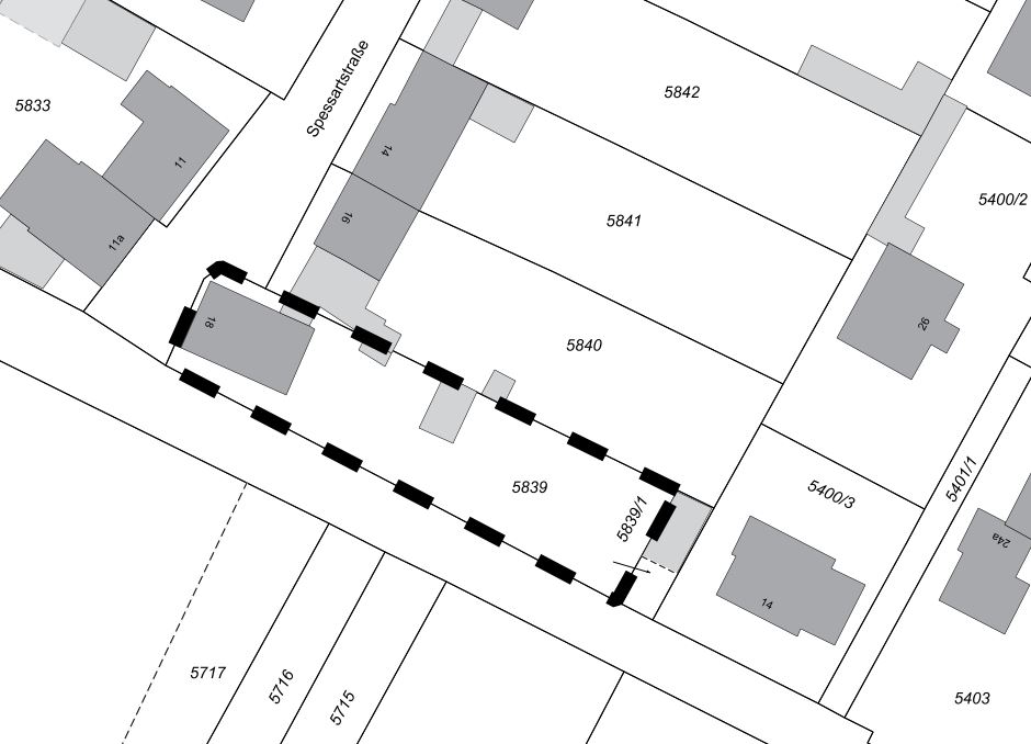
Bekanntmachung des Satzungsbeschlusses für die 6. Änderung des Bebauungsplanes „Siedlung“ der Stadt Erlenbach a.Main

14.11.2024
Bekanntmachung des Satzungsbeschlusses für die 6. Änderung des Bebauungsplanes „Siedlung“ der Stadt Erlenbach a.Main

Kategorien: Die Stadt Erlenbach informiert

Cookie-Einstellungen

Wir verwenden Cookies, um Ihnen ein optimales Webseiten-Erlebnis zu bieten. Dazu zählen Cookies, die für den Betrieb der Seite und für die Steuerung unserer kommerziellen Unternehmensziele notwendig sind, sowie solche, die lediglich zu anonymen Statistikzwecken, für Komforteinstellungen oder zur Anzeige personalisierter Inhalte genutzt werden. Sie können selbst entscheiden, welche Kategorien Sie zulassen möchten. Bitte beachten Sie, dass auf Basis Ihrer Einstellungen womöglich nicht mehr alle Funktionalitäten der Seite zur Verfügung stehen.
→ Weitere Informationen finden Sie in unserem Datenschutzhinweis.

Diese Seite verwendet Personalisierungs-Cookies. Um diese Seite betreten zu können, müssen Sie die Checkbox bei "Personalisierung" aktivieren.